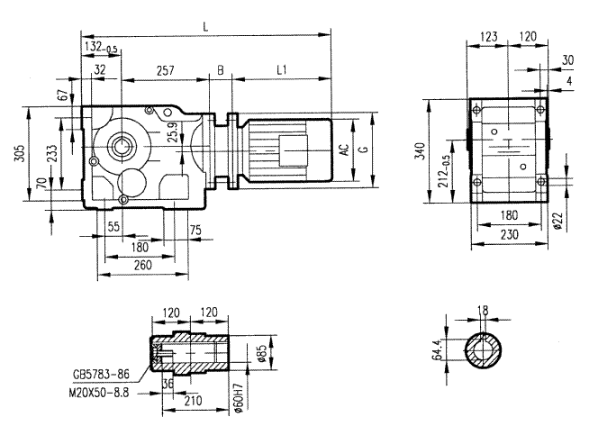
GKAB87型斜齒輪弧齒錐齒輪減速電機安裝結構圖尺寸

|
電機機座號 |
80 |
90S |
90L |
100L |
112M |
132S |
132M |
160M |
160L |
180M |
180L |
|
AC |
175 |
195 |
195 |
215 |
240 |
275 |
275 |
330 |
330 |
380 |
380 |
|
AD |
145 |
155 |
155 |
180 |
190 |
210 |
210 |
255 |
255 |
280 |
280 |
|
B |
70 |
70 |
70 |
82 |
82 |
92 |
92 |
130 |
130 |
130 |
130 |
|
G |
200 |
200 |
200 |
250 |
250 |
300 |
300 |
350 |
350 |
350 |
350 |
|
L1 |
255 |
270 |
295 |
325 |
340 |
390 |
430 |
505 |
560 |
590 |
630 |
|
L |
714 |
729 |
754 |
796 |
811 |
871 |
911 |
1024 |
1079 |
1109 |
1149 |
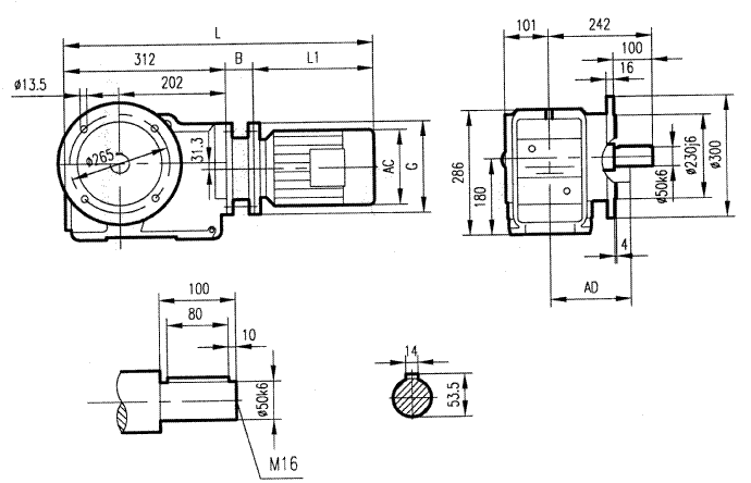
GKAB97型斜齒輪弧齒錐齒輪減速電機安裝結構圖尺寸

法蘭聯(lián)接式(Y2標準電機)
|
電機機座號 |
90S |
90L |
100L |
112M |
132S |
132M |
160M |
160L |
180M |
180L |
200 |
|
AC |
195 |
195 |
215 |
240 |
275 |
275 |
330 |
330 |
380 |
380 |
420 |
|
AD |
155 |
155 |
180 |
190 |
210 |
210 |
255 |
255 |
280 |
280 |
305 |
|
B |
65 |
65 |
81.5 |
81.5 |
92 |
92 |
125 |
125 |
125 |
125 |
152 |
|
G |
200 |
200 |
250 |
250 |
300 |
300 |
350 |
350 |
350 |
350 |
400 |
|
L1 |
270 |
295 |
325 |
340 |
390 |
430 |
505 |
560 |
590 |
630 |
660 |
|
L |
777 |
797 |
843.5 |
858.8 |
919 |
959 |
1067 |
1122 |
1152 |
1192 |
1249 |
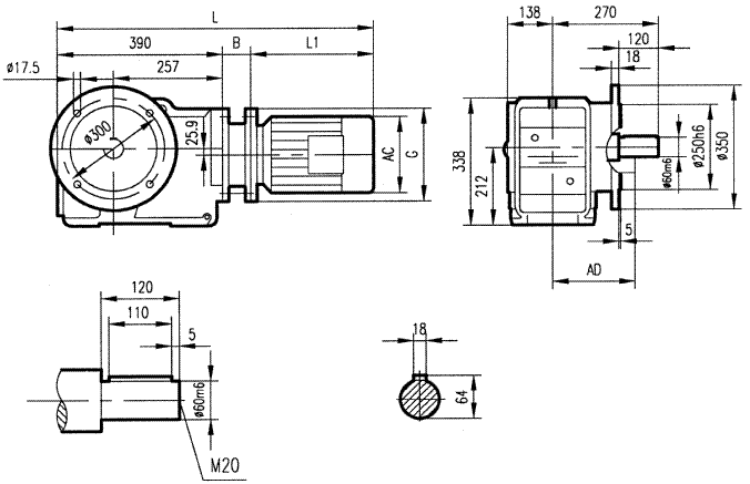
GKBA107型斜齒輪弧齒錐齒輪減速電機安裝結構圖尺寸

法蘭聯(lián)接式(Y2標準電機)
|
電機機座號 |
100L |
112M |
132S |
132M |
160M |
160L |
180M |
180L |
200 |
225S |
225M |
|
AC |
215 |
240 |
275 |
275 |
330 |
330 |
380 |
380 |
420 |
470 |
470 |
|
AD |
180 |
190 |
210 |
210 |
255 |
255 |
280 |
280 |
305 |
335 |
335 |
|
B |
68 |
68 |
106 |
106 |
126 |
126 |
126 |
126 |
140 |
170 |
170 |
|
G |
250 |
250 |
300 |
300 |
350 |
350 |
350 |
350 |
400 |
450 |
450 |
|
L1 |
325 |
340 |
390 |
430 |
505 |
560 |
590 |
630 |
660 |
675 |
705 |
|
L |
934 |
949 |
1037 |
1077 |
1171 |
1227 |
1257 |
1297 |
1341 |
1386 |
1416 |
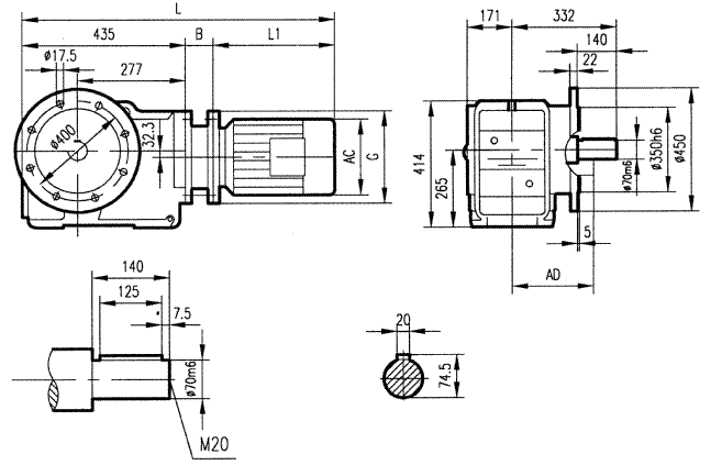
GKF37型斜齒輪弧齒錐齒輪減速電機安裝結構圖尺寸

法蘭聯(lián)接式(Y2標準電機)
|
電機機座號 |
63 |
71 |
80 |
90S |
90L |
100L |
|
|
|
|
AC |
130 |
145 |
175 |
195 |
195 |
215 |
|
|
|
|
AD |
70 |
80 |
145 |
155 |
155 |
180 |
|
|
|
|
B |
45 |
50.5 |
60.5 |
60.5 |
60.5 |
85.5 |
|
|
|
|
G |
140 |
160 |
200 |
200 |
200 |
250 |
|
|
|
|
L1 |
207 |
225 |
255 |
270 |
295 |
325 |
|
|
|
|
L |
462 |
485.5 |
525.5 |
540.5 |
565.5 |
620.5 |
|
|
|
注::機座80,90,100L超過底座.
GKF47型斜齒輪弧齒錐齒輪減速電機安裝結構圖尺寸

法蘭聯(lián)接式(Y2標準電機)
|
電機機座號 |
63 |
71 |
80 |
90S |
90L |
100L |
|
|
|
|
AC |
130 |
145 |
175 |
195 |
195 |
215 |
|
|
|
|
AD |
70 |
80 |
145 |
155 |
155 |
180 |
|
|
|
|
B |
44.5 |
50 |
69 |
69 |
69 |
81 |
|
|
|
|
G |
140 |
160 |
200 |
200 |
200 |
250 |
|
|
|
|
L1 |
207 |
225 |
255 |
270 |
295 |
325 |
|
|
|
|
L |
494.5 |
518 |
567 |
582 |
607 |
649 |
|
|
|
注:機座100L超過底座.
GKF57型斜齒輪弧齒錐齒輪減速電機安裝結構圖尺寸

法蘭聯(lián)接式(Y2標準電機)
|
電機機座號 |
63 |
71 |
80 |
90S |
90L |
100L |
112M |
|
|
|
AC |
130 |
145 |
175 |
195 |
195 |
215 |
240 |
|
|
|
AD |
70 |
80 |
145 |
155 |
155 |
180 |
190 |
|
|
|
B |
44.5 |
50 |
69 |
69 |
69 |
81 |
81 |
|
|
|
G |
140 |
160 |
200 |
200 |
200 |
250 |
250 |
|
|
|
L1 |
207 |
225 |
255 |
270 |
295 |
325 |
340 |
|
|
|
L |
520.5 |
544 |
593 |
608 |
633 |
675 |
690 |
|
|
注:機座100L,112M超過底座
GKF67型斜齒輪弧齒錐齒輪減速電機安裝結構圖尺寸

法蘭聯(lián)接式(Y2標準電機)
|
電機機座號 |
63 |
71 |
80 |
90S |
90L |
100L |
112M |
132S |
|
|
AC |
130 |
145 |
175 |
195 |
195 |
215 |
240 |
275 |
|
|
AD |
70 |
80 |
145 |
155 |
155 |
180 |
190 |
210 |
|
|
B |
44.5 |
50 |
69 |
69 |
69 |
81 |
81 |
93 |
|
|
G |
140 |
160 |
200 |
200 |
200 |
250 |
250 |
300 |
|
|
L1 |
207 |
225 |
255 |
270 |
295 |
325 |
340 |
390 |
|
|
L |
525.5 |
549 |
598 |
613 |
638 |
680 |
695 |
757 |
|
注:機座100L,112M,132S超過底座.
GKF77型斜齒輪弧齒錐齒輪減速電機安裝結構圖尺寸

法蘭聯(lián)接式(Y2標準電機)
|
電機機座號 |
63 |
71 |
80 |
90S |
90L |
100L |
112M |
132S |
132M |
160M |
|
AC |
130 |
145 |
175 |
195 |
195 |
215 |
240 |
275 |
275 |
330 |
|
AD |
70 |
80 |
145 |
155 |
155 |
180 |
190 |
210 |
210 |
255 |
|
B |
44.5 |
50 |
70 |
70 |
70 |
75 |
75 |
96.5 |
96.5 |
125 |
|
G |
140 |
160 |
200 |
200 |
200 |
250 |
250 |
300 |
300 |
350 |
|
L1 |
207 |
225 |
255 |
270 |
295 |
325 |
340 |
390 |
430 |
505 |
|
L |
563.5 |
587 |
637 |
652 |
677 |
712 |
727 |
798.5 |
838.5 |
942 |
注:機座132S,132M,160M超過底座.
GKF87型斜齒輪弧齒錐齒輪減速電機安裝結構圖尺寸

法蘭聯(lián)接式(Y2標準電機)
|
電機機座號 |
80 |
90S |
90L |
100L |
112M |
132S |
132M |
160M |
160L |
180M |
180L |
|
AC |
175 |
195 |
195 |
215 |
240 |
275 |
275 |
330 |
330 |
380 |
380 |
|
AD |
145 |
155 |
155 |
180 |
190 |
210 |
210 |
255 |
255 |
280 |
280 |
|
B |
70 |
70 |
70 |
82 |
82 |
92 |
92 |
130 |
130 |
130 |
130 |
|
G |
200 |
200 |
200 |
250 |
250 |
300 |
300 |
350 |
350 |
350 |
350 |
|
L1 |
255 |
270 |
270 |
325 |
340 |
390 |
430 |
505 |
560 |
590 |
630 |
|
L |
715 |
730 |
755 |
797 |
812 |
872 |
912 |
1025 |
1080 |
1110 |
1150 |
GKF97型斜齒輪弧齒錐齒輪減速電機安裝結構圖尺寸

法蘭聯(lián)接式(Y2標準電機)
|
電機機座號 |
90S |
90L |
100L |
112M |
132S |
132M |
160M |
160L |
180M |
180L |
200 |
|
AC |
195 |
195 |
215 |
240 |
275 |
275 |
330 |
330 |
380 |
380 |
420 |
|
AD |
155 |
155 |
180 |
190 |
210 |
210 |
255 |
255 |
280 |
280 |
305 |
|
B |
65 |
65 |
81.5 |
81.5 |
92 |
92 |
125 |
125 |
125 |
125 |
152 |
|
G |
200 |
200 |
250 |
250 |
300 |
300 |
350 |
350 |
350 |
350 |
400 |
|
L1 |
270 |
295 |
325 |
340 |
390 |
430 |
505 |
560 |
590 |
630 |
660 |
|
L |
770 |
795 |
841.5 |
856.5 |
917 |
957 |
1065 |
1120 |
1150 |
1190 |
1247 |