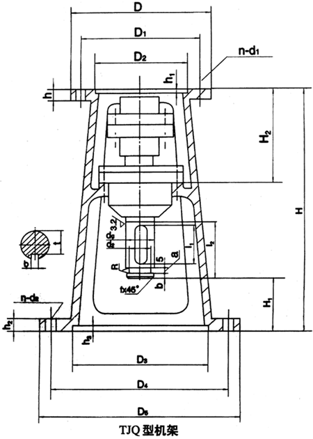
TJQ型機(jī)架安裝尺寸

|
機(jī)架型號 |
減速機(jī)型號 |
輸出 軸dg(H7) |
輸入端接口 |
輸出端接口 |
H |
H1 |
H2 |
l1 |
l2 |
a
(Hll) |
b1 |
d2
(Hll) |
b |
t |
|
D |
D1 |
D2 |
h |
h1 |
n-d1 |
D3 |
D4 |
D5 |
h2 |
h3 |
n-d2 |
|
TJQ2 |
B1 |
35 |
230 |
200 |
170 |
18 |
5 |
6-12 |
250 |
300 |
335 |
20 |
7 |
4-24 |
496 |
173 |
175 |
55 |
85 |
5 |
4 |
30 |
10 |
30 |
|
TJQ3 |
B2 |
45 |
260 |
230 |
200 |
20 |
6 |
6-13.5 |
295 |
350 |
392 |
23 |
7 |
4-24 |
568 |
196 |
209 |
70 |
100 |
6 |
5 |
37 |
14 |
39.5 |
|
TJQ4 |
B3 |
55 |
340 |
310 |
270 |
20 |
6 |
6-13.5 |
345 |
400 |
442 |
24 |
7 |
4-24 |
635 |
246 |
215 |
70 |
100 |
6 |
5 |
47 |
16 |
49 |
|
TJQ5 |
B3 |
55 |
340 |
310 |
270 |
20 |
6 |
6-13.5 |
390 |
450 |
498 |
25 |
7 |
4-30 |
684 |
271 |
239 |
70 |
100 |
6 |
5 |
47 |
16 |
49 |
|
TJQ6 |
B4 |
70 |
400 |
360 |
320
(316) |
22 |
6 |
8-16 |
435 |
500 |
548 |
26 |
7 |
8-30 |
715 |
253 |
253 |
100 |
130 |
8 |
6 |
60 |
20 |
62.5 |
|
TJQ7 |
B5 |
90 |
490 |
450 |
400 |
25 |
7 |
12-18 |
440 |
550 |
600 |
28 |
10 |
12-22 |
800 |
195 |
341 |
140 |
170 |
10 |
8 |
80 |
25 |
81 |
|
TJQ8 |
B6 |
100 |
580 |
520 |
460
(455) |
26 |
10 |
12-22 |
500 |
550 |
600 |
30 |
10 |
12-22 |
810 |
186 |
358 |
140 |
170 |
10 |
8 |
90 |
28 |
90 |